| Building Information |
 |
|
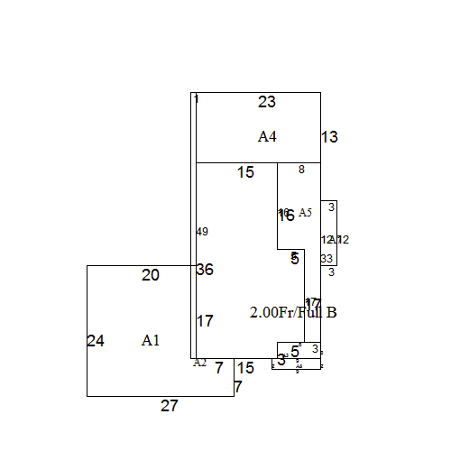
| Main | None | None | None | None | 1,120 | | A1 | None | Open Frame Porch | None | None | 20 |
| |
 |
| Wood | | Partial | | Condo | | Basic | | 1.00 | | Hot Water | | Alum/Vinyl | | Oil | | 4 | | None | | 2 | | Average | | 1 | | B- | | | | Medium/Comm | | | | | | none | | | none | | 1956 | | none | | 1956 | | 0 | | 1,120 |
| | |
|
| Other Improvements |
|
| 1 | Garage - Frame | 1 | 1977 | 20 | 20 | B | Good | 0.5 |
|
| U1 is on 1st flr, U2 is on 2nd flr. Condo TLA taken from Master Deed. |
|
|
|
Condo Information |
| Conversion | | 1 | | No | | Neighborhood 16 | | 937 | | No | | 46.571 | | 0 | |
|
|
| Land Description |
| |
|
Paved |
|
No |
|
Average |
| Level |
|
Public |
|
|
Public |
|
Yes |
|
|
| |
|
|
|
|
|
|
|
No |
|
|
|
| |
|
|
|
|
|
|
|
|
|
|
|
|
|
|
|
| 1 | Primary Site | LB3 | 16 | 0 | 1 | Medium/Comm |
|
|
|
| Inspection Information |
|
Permit Information |
|
| 7/11/2019 | BC | Entrance & Signature Gained | | 5/21/2013 | RJG | Occupant Not At Home | | 12/19/2005 | RDS | Entrance & Signature Gained | | 5/9/1995 | MO | Entrance Gained | | 6/1/1984 | TWN | Entrance & Info Refused |
|
|
|
| 10/25/2018 | 100 | $17,294.00 | strip & reroof, U1 & U2 |
|
|
|
| Sales Information |
|
|
| 10/3/2025 | $580,000 | 84695 | 423 | YANG YOON SUN | Valid | | 5/28/2013 | $312,000 | 61882 | 330 | PRADHAN TE PRATAP | Valid | | 5/30/2008 | $1 | 51241 | 594 | PRADHAN TE PRATAP & ANJU PRADHAN | F. convenience | | 5/13/2008 | $1 | 51163 | 455 | PRADHAN TE PRATAP & ANJU PRADHAN | P. use change | | 4/11/2005 | $540,000 | 44971 | 213 | KILEY CLAIRE | Valid | | 10/26/1971 | $0 | 12098 | 0556 | | none | | 10/26/1971 | $1 | 12098 | 556 | BONFIGLIO TE JOSEPH C | H. court order |
|
|
| Disclaimer |
|
|