| Building Information |
 |
|
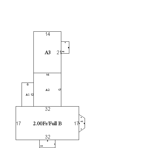
| Main | None | None | None | None | 1,014 | | A1 | None | Concrete/Mason Patio | None | None | 176 | | A2 | None | Open Frame Porch | None | None | 70 | | A3 | None | Open Frame Porch | None | None | 32 | | A4 | None | Encl. Frame Porch | None | None | 28 | | A5 | None | Mason Stoop/Terrace | None | None | 24 | | A6 | None | Wood Deck | None | None | 56 |
| |
 |
| Wood | | Full | | Cottage/Bungalow | | Basic | | 1.00 | | Hot Water | | Frame | | Gas | | 5 | | Unfinished | | 2 | | Above Average | | 2 | | B- | | | | Medium/Comm | | | | | | 20 x10 | | | none | | 1958 | | none | | 1958 | | 0 | | 1,014 |
| | |
|
| Other Improvements |
|
| 1 | Garage - Frame | 1 | 1966 | 26 | 22 | C | Good | 1 |
|
|
|
| Land Description |
| |
|
Paved |
|
No |
|
Average |
| Level |
|
Public |
|
|
Public |
|
Yes |
|
|
| |
|
|
|
|
|
|
|
No |
|
|
|
| |
|
|
|
|
|
|
|
|
|
|
|
|
|
|
|
| 1 | Primary Site | R | 11 | 5904 | 1 | Medium/Comm |
|
|
|
| Inspection Information |
|
Permit Information |
|
| 2/12/2022 | BC | Entrance & Signature Gained | | 7/19/2021 | BC | Occupant Not At Home | | 8/9/2014 | RJG | Entrance & Signature Gained | | 6/15/2007 | JG | Entrance & Signature Gained | | 5/5/2000 | JMS | Entrance & Signature Gained | | 6/1/1984 | TWN | Entrance & Signature Gained |
|
|
|
| 4/30/2021 | 100 | $18,000.00 | "INSTALL ABOVE GROUND THERAPY POOL
| | 9/22/1997 | 100 | $2,000.00 | Replace right side of roof shingles. |
| |
|
| Sales Information |
|
| 11/14/2025 | $1,015,000 | 1635 | 152 | BROWN AMY M | Valid | | 6/26/2014 | $580,000 | 1455 | 38 | SIMONETTI TE ELIZABETH A | Valid | | 5/22/1986 | $180,000 | 01013 | 0081 | | none |
|
|
| Disclaimer |
|
|