| Building Information |
 |
|
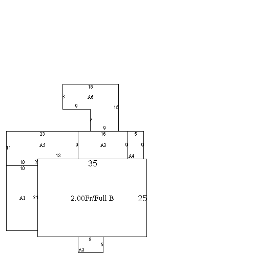
| Main | None | None | None | None | 1,215 | | A1 | None | Open Frame Porch | None | None | 166 | | A2 | None | Wood Deck | None | None | 35 |
| |
 |
| Wood | | Partial | | Condo | | Basic | | 1.00 | | Warm Air | | Frame | | Gas | | 5 | | None | | 2 | | Above Average | | 1 | | B- | | | | Average Traffic | | | | | | none | | | none | | 1908 | | none | | 2001 | | 0 | | 1,215 |
| | |
|
| Other Improvements |
|
| Name of condo complex is The Fifty Two Marlboro Street Condominium. U1 is on 1st flr, U2 is on 2nd flr, U3 is on 3rd flr. Grade changed from B+ to B- 2/1/08. TLA on condo tab driven from M Deed. |
|
|
|
Condo Information |
| Conversion | | 3 | | No | | Neighborhood 15 | | 1020 | | No | | 0.35 | | 0 | |
|
|
| Land Description |
| |
|
Paved |
|
No |
|
Average |
| Level |
|
Public |
|
|
Public |
|
Yes |
|
|
| |
|
|
|
|
|
|
|
No |
|
|
|
| |
|
|
|
|
|
|
|
|
|
|
|
|
|
|
|
| 1 | Primary Site | R | 15 | 0 | 1 | Average Traffic |
|
|
|
| Inspection Information |
|
Permit Information |
|
| 8/8/2024 | JP | Occupant Not At Home | | 6/27/2017 | | Occupant Not At Home | | 4/29/2011 | RJG | Entrance & Signature Gained | | 5/1/2004 | RJG | Entrance & Signature Gained | | 6/1/1991 | KD | Entrance & Signature Gained |
|
|
|
| 9/13/2019 | 100 | $16,000.00 | strip & reroof U1, U2 & U3 | | 12/12/2012 | 100 | $2,981.00 | air sealing & insulation |
|
|
|
| Sales Information |
|
|
| 6/20/2025 | $646,000 | 84255 | 259 | STEPHENS JT BENJAMIN | Valid | | 6/27/2011 | $284,000 | 57049 | 98 | FICOCIELLO JT JOSEPH P | U. private sale not on market | | 12/5/2001 | $245,000 | 34238 | 088 | CODIRE MARION L | Valid | | 11/19/1968 | $1 | 09497 | 0421 | MORGAN LOUISE | none |
|
|
| Disclaimer |
|
|