| Building Information |
 |
|
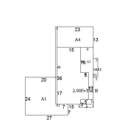
| Main | None | None | None | None | 625 | | A1 | Basement Unfin | Stone or Tile Patio | None | None | 529 | | A2 | None | None | Frame Overhang | None | 49 | | A3 | None | 1s Frame | 1s Frame | None | 24 | | A4 | None | 1s Frame | 1s Frame | None | 299 | | A5 | None | 1s Frame | 1s Frame | None | 179 | | A6 | None | Open Frame Porch | Frame Overhang | None | 18 | | A7 | None | 1s Frame | None | None | 36 |
| |
 |
| Wood | | Full | | Contemporary | | Central Air | | 2.00 | | Warm Air | | Frame | | Gas | | 6 | | None | | 3 | | Excellent | | 3 | | A | | 1 | | Average Traffic | | 3 | | 2 | | 24 x15 | | | none | | 1960 | | 2 stalls | | 2016 | | 1 | | 2,357 |
| | |
|
| Other Improvements |
|
| 1 | Patio - Stone/Tile | 1 | 1980 | 12 | 8 | B | Average | 1 | | 2 | Patio - Stone/Tile | 1 | 1980 | 14 | 8 | B | Average | 1 |
|
| m bath has 5 fixtures, one full bath has 4 fixtures (dbl van) |
|
|
| Land Description |
| |
|
Paved |
|
No |
|
Average |
| Above Street |
|
Public |
|
|
Public |
|
Yes |
|
|
| |
|
|
|
|
|
|
|
No |
|
|
|
| |
|
|
|
|
|
|
|
|
|
|
|
|
|
|
|
| 1 | Primary Site | SB | 1 | 19143 | 1 | Average Traffic |
|
|
|
| Inspection Information |
|
Permit Information |
|
| 7/1/2023 | BC | Entrance & Signature Gained | | 6/14/2016 | | Entrance & Signature Gained | | 4/29/2009 | | Occupant Not At Home | | 2/22/2008 | RDS | Entrance Gained | | 6/26/2002 | RJG | Occupant Not At Home | | 6/1/1984 | TWN | Entrance & Signature Gained |
|
|
|
| 10/13/2016 | 100 | $223,000.00 | gut inter refame for new space, remodl 3 1/2 baths & kitch, add small adds on front & side of house | | 6/30/2016 | 100 | $1,500.00 | plaster off walls, electr & plumb, remove kitch cabs & appliances for same purpose |
| |
|
| Sales Information |
|
| 10/17/2025 | $2,501,000 | 1634 | 111 | ILMHP LLC | Valid | | 7/29/2025 | $1 | 1631 | 33 | WELLS JOHN R | F. convenience | | 4/1/2016 | $1,250,000 | 1487 | 94 | LEVEE TE NEWTON H | Valid | | 7/10/1973 | $0 | 00837 | 0138 | | none |
|
|
| Disclaimer |
|
|