| Building Information |
 |
|
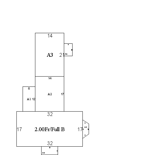
| Main | None | None | None | None | 1,302 | | A1 | None | Open Frame Porch | None | None | 208 | | A2 | None | 1s Frame | None | None | 24 | | A3 | None | Open Frame Porch | None | None | 28 | | A4 | None | Frame Garage | 1/2s Frame | None | 418 | | A5 | Basement Unfin | 1s Frame | 1/2s Frame | None | 154 | | A6 | None | None | Frame Overhang | None | 42 | | A7 | Basement Entry | None | None | None | 31 | | A8 | Basement Unfin | Frame Bay | None | None | 14 |
| |
 |
| Wood | | Full | | Garrison | | Basic | | 2.00 | | Hot Water | | Frame | | Oil | | 10 | | Part Finished | | 4 | | Fair | | 3 | | A+ | | 1 | | Average Traffic | | | | 2 | | none | | | none | | 1933 | | none | | 1933 | | 2 | | 3,384 |
| | |
|
| Other Improvements |
|
|
|
| Land Description |
| |
|
Paved |
|
No |
|
Average |
| Above Street |
|
Public |
|
|
Public |
|
Yes |
|
|
| |
|
|
|
|
|
|
|
No |
|
|
|
| |
|
|
|
|
|
|
|
|
|
|
|
|
|
|
|
| 1 | Primary Site | SA | 1 | 35885 | 1 | Average Traffic |
|
|
|
| Inspection Information |
|
Permit Information |
|
| 8/3/2023 | JP | Entrance & Signature Gained | | 7/7/2016 | GS | Entrance & Signature Gained | | 5/18/2009 | | Occupant Not At Home | | 8/15/2002 | RJG | Entrance & Signature Gained | | 12/1/1994 | KD | Entrance Gained | | 5/22/1992 | KD | Entrance Gained |
|
|
|
| 8/4/2010 | 100 | $9,000.00 | install roof with columns over front landing |
| |
|
| Sales Information |
|
| 11/20/2025 | $2,300,000 | 1635 | 198 | BAILYN TR LOTTE & LIAM M RYAN | Valid | | 2/9/2023 | $1 | 1599 | 51 | BAILYN TC BERNARD | F. convenience | | 9/27/1999 | $1 | 1211 | 151 | BAILYN TE BERNARD | F. convenience | | 12/1/1971 | $0 | 813 | 6 | | none |
|
|
| Disclaimer |
|
|