| Building Information |
 |
|
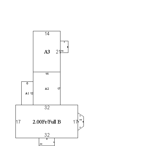
| Main | None | None | None | None | 1,868 | | A1 | None | Concrete/Mason Patio | None | None | 324 | | A2 | None | 1s Frame | None | None | 50 | | A3 | None | 1s Frame | None | None | 552 | | A4 | None | 1s Frame | 1s Frame | None | 480 | | A5 | None | 1s Frame | Wood Deck | None | 120 | | A6 | None | 1s Frame | None | None | 32 | | A7 | None | Mason Stoop/Terrace | None | None | 50 |
| |
 |
| Wood | | Full | | Contemporary | | Central Air | | 1.00 | | Hot Water | | Frame | | Gas | | 8 | | None | | 3 | | Above Average | | 4 | | B+ | | 2 | | Average Traffic | | 3 | | 4 | | none | | | 38 x18 | | 1962 | | 2 stalls | | 1962 | | 2 | | 3,582 |
| | |
|
| Other Improvements |
|
| 1 | Shed - Frame | 1 | 1972 | 11 | 8 | C | Average | 1 | | 2 | Pool - Gunite | 1 | 1972 | 500 | 0 | C | Average | 1 |
|
|
|
| Land Description |
| |
|
Paved |
|
No |
|
Average |
| Level |
|
Public |
|
|
Public |
|
Yes |
|
|
| |
|
|
|
|
|
|
|
No |
|
|
|
| |
|
|
|
|
|
|
|
|
|
|
|
|
|
|
|
| 1 | Primary Site | SA | 17 | 20000 | 1 | Average Traffic |
|
|
|
| Inspection Information |
|
Permit Information |
|
| 10/20/2023 | BC | Entrance & Signature Gained | | 7/11/2016 | GS | Entrance & Signature Gained | | 7/15/2009 | RJG | Entrance & Signature Gained | | 4/7/2003 | RJG | Entrance & Signature Gained | | 6/1/1984 | TWN | Entrance & Signature Gained |
|
|
|
| 8/10/2018 | 100 | $14,860.00 | strip & reroof | | 6/30/1993 | 100 | $20,000.00 | ELIMINATE ONE BEDROOM & REPLACE WITH ADDT'L BATH; RENOVATE 2 EXISTING BATHS; NOSTRUCTURAL CHANGES |
| |
|
| Sales Information |
|
| 11/28/2025 | $2,070,000 | 1636 | 58 | GANZ TRS JUDITH L & BRYAN S GANZ | Valid | | 7/11/2018 | $1 | 1530 | 20 | GANZ JUDITH H | F. convenience | | 2/11/1982 | $1 | 00954 | 0006 | | F. convenience |
|
|
| Disclaimer |
|
|