| Building Information |
 |
|
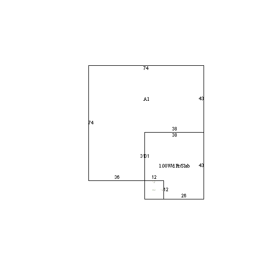
| Main | None | None | None | None | 1,104 | | A1 | None | None | Frame Overhang | None | 80 | | A2 | None | Frame Bay | None | None | 12 | | A3 | None | Frame Bay | None | None | 12 | | A4 | None | Open Frame Porch | None | None | 32 | | A5 | Basement Unfin | 1s Frame | None | None | 425 | | A6 | None | Stone or Tile Patio | None | None | 414 | | A7 | Basement Unfin | 1s Frame | 1/2s Frame | None | 233 | | A8 | None | Frame Garage | 3/4s Frame | None | 565 |
| |
 |
| Wood | | Full | | Cape Cod | | Central Air | | 1.75 | | Warm Air | | Frame | | Electric | | 7 | | None | | 3 | | Good | | 3 | | B- | | 1 | | Medium/Comm | | 3 | | 3 | | 628 x1 | | | none | | 1984 | | none | | 1984 | | 1 | | 3,235 |
| | |
|
| Other Improvements |
|
| 1 | Shed - Frame | 1 | 1991 | 8 | 10 | C | Average | 1 |
|
|
|
| Land Description |
| |
|
Paved |
|
No |
|
Average |
| Level |
|
Septic |
Water |
|
Public |
|
Yes |
|
|
| |
|
|
|
|
|
|
|
No |
|
|
|
| |
|
|
|
|
|
|
|
|
|
|
|
|
|
|
|
| 1 | Primary Site | SA | 1 | 35113 | 1 | Medium/Comm |
|
|
|
| Inspection Information |
|
Permit Information |
|
| 6/4/2024 | JP | Entrance & Signature Gained | | 6/20/2017 | GS | Entrance & Signature Gained | | 6/15/2010 | RDS | Entrance Gained | | 7/10/2003 | RJG | Entrance & Signature Gained | | 6/1/1984 | TWN | Entrance & Signature Gained |
|
|
|
| 4/15/2009 | 100 | $48,400.00 | remodl existing kitch, no structural | | 8/21/2006 | 100 | $58,650.00 | strip & reroof | | 3/24/2005 | 100 | $10,200.00 | replc 5 windows |
| |
|
| Sales Information |
|
| 7/11/2025 | $2,150,000 | 84346 | 511 | NEWBOLD PHILIP M | Valid | | 8/28/2019 | $1 | 73183 | 310 | NEWBOLD TE PHILIP M | F. convenience | | 7/11/1985 | $505,000 | 16282 | 0465 | | Valid |
|
|
| Disclaimer |
|
|