| Building Information |
 |
|
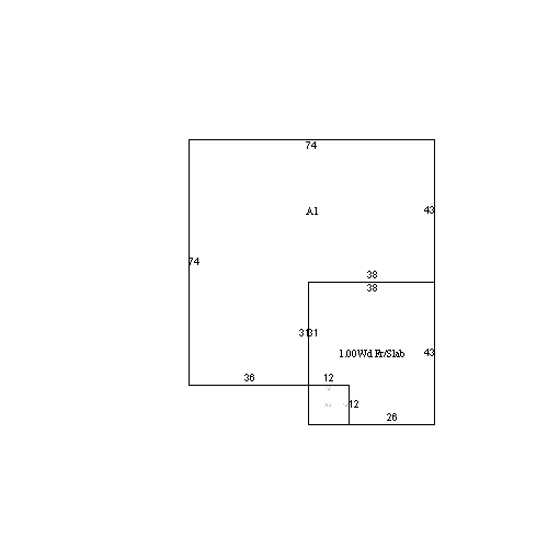
| Main | None | None | None | None | 1,296 | | A1 | Basement Unfin | None | 1s Frame | None | 60 | | A2 | Canopy | None | 1s Frame | None | 80 |
| |
 |
| Wood | | Partial | | Condo | | Central Air | | 1.00 | | Warm Air | | Alum/Vinyl | | Gas | | 7 | | Part Finished | | 4 | | Excellent | | 2 | | A- | | | | Average Traffic | | | | | | none | | | none | | 1925 | | 2 stalls | | 2013 | | 0 | | 1,695 |
| | |
|
| Other Improvements |
|
| U55 is on 1st flr, U57 is on 2nd flr & attic. U57 has ownership of the garage stalls only. Condo TLA taken Master Deed. |
|
|
|
Condo Information |
| Conversion | | 1 | | No | | 2-unit condominium | | 1741 | | No | | 0.54 | | 0 | |
|
|
| Land Description |
| |
|
Paved |
|
No |
|
Average |
| Level |
|
Public |
Gas |
|
Public |
|
Yes |
|
|
| |
|
|
|
|
|
|
|
Yes |
|
|
|
| |
|
|
|
|
|
|
|
|
|
|
|
|
|
|
|
| 1 | Primary Site | R | 7 | 0 | 0 | Average Traffic |
|
|
|
| Inspection Information |
|
Permit Information |
|
| 6/8/2018 | BC | Entrance Gained | | 9/5/2014 | | Entrance Gained |
|
|
|
| 3/12/2013 | 100 | $134,000.00 | remodl kitch & bathrm completely, includes some alters, amend 4/26/13 to add remodel kitch & bath in unit 1 $26K
9/10 bld dormer 3rd flr (attic) w FB, enclose 2 sides of porch & convert 2nd flr to close it $108K |
|
|
|
| Sales Information |
|
|
| 6/30/2025 | $1,200,000 | 84302 | 363 | MARKOVIC TE NEMANJA | Valid | | 12/15/2020 | $875,000 | 76436 | 516 | FLETTERICK CHERYL S | Valid | | 12/4/2014 | $719,900 | 64608 | 443 | TUTUNJIAN EDWARD J | Valid | | 11/25/2014 | $1 | 64563 | 357 | TUTUNJIAN EDWARD J | P. use change |
|
|
| Disclaimer |
|
|