| Building Information |
 |
|
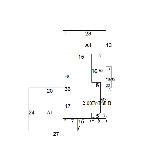
| Main | None | None | None | None | 1,152 | | A1 | None | Open Frame Porch | None | None | 140 | | A2 | None | Open Frame Porch | None | None | 32 | | A3 | None | Frm Util Building | None | None | 100 |
| |
 |
| Wood | | None | | Condo | | Basic | | 2.00 | | Hot Water | | Alum/Vinyl | | Gas | | 5 | | None | | 3 | | Good | | 1 | | B- | | | | Average Traffic | | 1 | | | | none | | | none | | 1973 | | none | | | | 0 | | 2,304 |
| | |
|
| Other Improvements |
|
| 1 | Shed - Frame | 1 | 2023 | 8 | 10 | B | Good | 1 |
|
|
|
|
Condo Information |
| Conversion | | 2 | | No | | 2-unit condominium | | 2070 | | No | | 55 | | 2 | |
|
|
| Land Description |
| |
|
Paved |
|
No |
|
Average |
| Level |
|
Public |
Gas |
|
Public |
|
Yes |
|
|
| |
|
|
|
|
|
|
|
Yes |
|
|
|
| |
|
|
|
|
|
|
|
|
|
|
|
|
|
|
|
| 1 | Primary Site | R | 5 | 0 | 1 | Average Traffic |
|
|
|
| Inspection Information |
|
Permit Information |
|
| 12/3/2020 | BC | Entrance & Signature Gained |
|
|
|
| 5/30/2004 | 100 | $3,500.00 | Strip & reroof. |
|
|
|
| Sales Information |
|
|
| 9/19/2025 | $685,000 | 84634 | 540 | GAO TE TIAN YUE | Valid | | 3/31/2022 | $1 | 79910 | 479 | GAO TE TIAN YUE | P. use change |
|
|
| Disclaimer |
|
|